Referenzen

Dienstgebäude, Bahnweg 2a, Pfäffikon

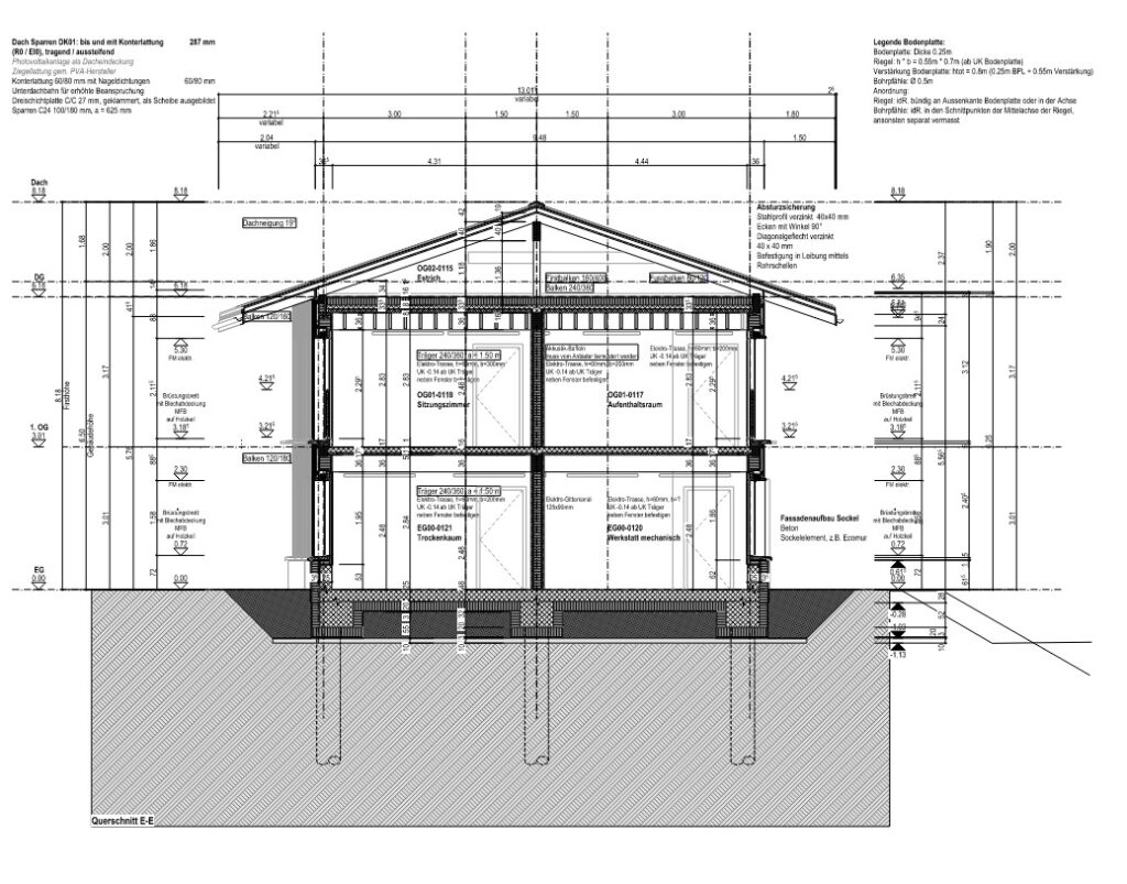
In Pfäffikon, unweit des Bahnhofs, realisieren wir den Bau eines neuen Dienstgebäudes für die SBB Zürich AG.
Zur Sicherstellung der Stabilität des zweigeschossigen Gebäudes wurden in der Baugrube insgesamt 24 Verdrängungspfähle mit einer Tiefe von bis zu 31 Metern in den Untergrund eingebracht.
Die Pfahlarbeiten sowie die Baumeisterarbeiten werden durch uns ausgeführt. Das Treppenhaus entsteht in Ortbeton, während im Erd- und Obergeschoss sämtliche Wände in Sichtbeton erstellt werden. Der restliche Baukörper wird im Holzelementbau durch die Firma H. Rosenberg Gmbh aus Jona realisiert.

Bauherr

Schweizerische Bundesbahn SBB, Zürich

Bauleitung

SACH Architekten AG, Zürich

Bauzeit

Mitte August 2025 – Ende September 2025

Ausgeführte Arbeitsgattungen

BKP 201 Aushubarbeiten
BKP 211 Baumeisterarbeiten

Verantwortung: